Lisboa, Loures, Moscavide e Portela, Portela (Portela)
Viva com espaço, luz e qualidade — às portas de Lisboa.
Descubra este magnífico apartamento T3, situado numa das zonas residenciais mais completas e bem localizadas da Grande Lisboa. A poucos minutos do centro da capital, este imóvel oferece acessos rápidos às principais vias, transportes públicos eficientes e proximidade imediata ao Aeroporto de Lisboa. Uma localização estratégica para quem valoriza mobilidade sem abdicar de tranquilidade.
Remodelado de raiz em 2008, incluindo canalizações multicamada e eletricidade, este apartamento combina conforto moderno com uma planta funcional e circular. A ótima exposição solar ilumina todas as divisões e destaca a vista desafogada, com vista lateral parcial para o Rio Tejo que inspira ao início e fim de cada dia.
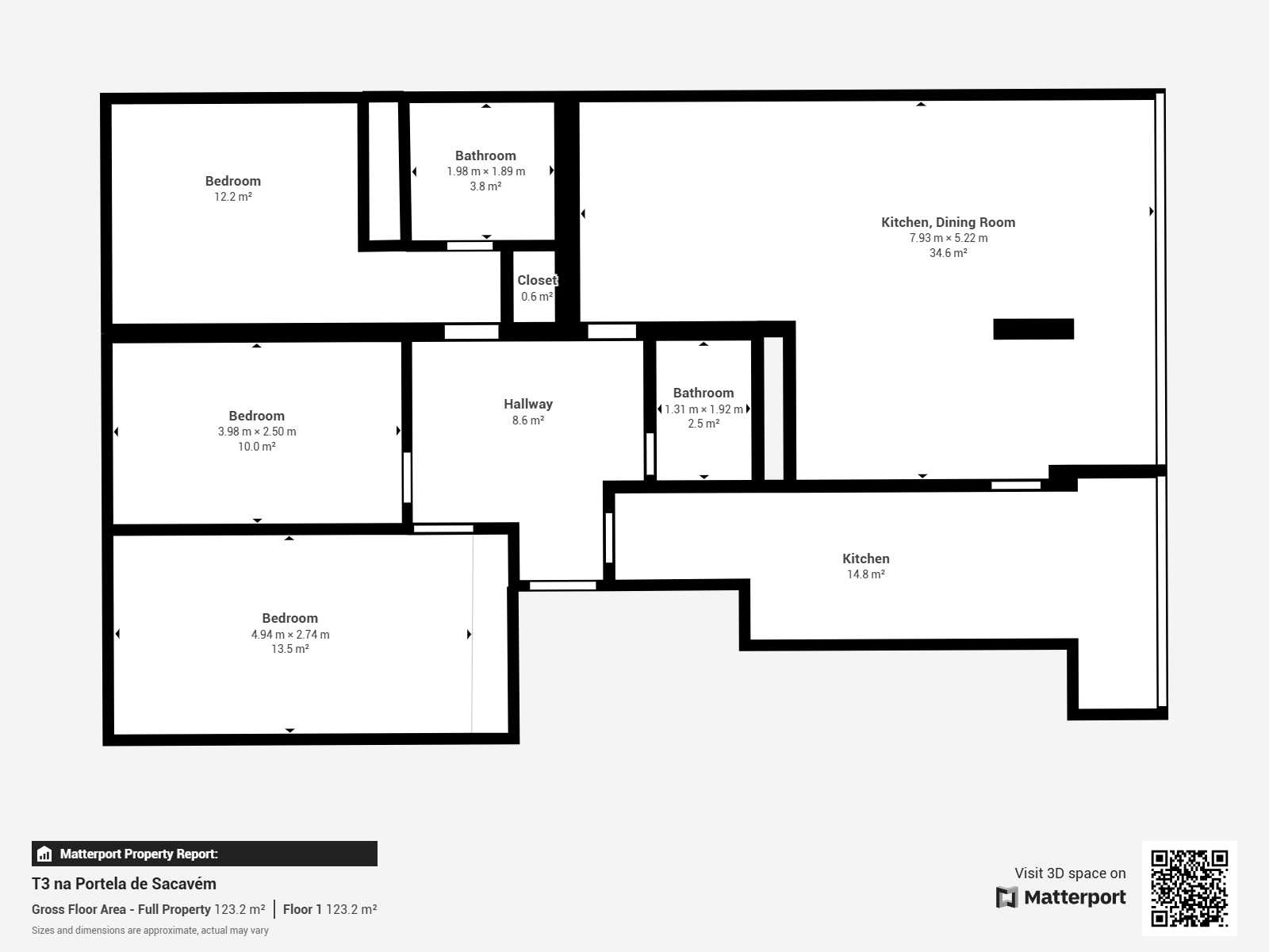
Composto por três quartos, sala espaçosa, cozinha equipada, garagem e arrecadação, este é o lar perfeito para quem quer mais da vida — mais luz, mais espaço, mais qualidade.
Destaques:
✔ 125m² Área Bruta Privativa;
✔ 3 quartos (1 suíte com banheira Sanindusa);
✔ 2 casas de banho com acabamentos Roca;
✔ Sala ampla com zona de estar e jantar;
✔ Cozinha MOB totalmente equipada com forno, placa vitrocerâmica, micro-ondas, máquina lavar loiça, máquina lavar roupa, frigorífico e bancada de cozinha Silestone;
✔ Termoacumulador Ariston 100L;
✔ Chão em soalho em madeira (exceto WCs e cozinha);
✔ Estores térmicos elétricos, vidros duplos, pré-instalação de A/C na sala de estar;
✔ Lugar de garagem;
✔ Arrecadação no último andar do prédio;
✔ Parqueamento exterior (pátio da frente e pátio traseiro);
✔ Prédio com porteira, 2 elevadores;
✔ Exposição solar excecional.
Localização premium, o bairro é um verdadeiro privilégio:
- Fácil acesso à 2ª Circular, A1, A8, CRIL, CREL, Ponte Vasco da Gama, Parque das Nações e Aeroporto;
- A 12 min. a pé do Metro de Moscavide;
- Centro Comercial da Portela, com tudo o que precisa: lojas, restauração, farmácia, clínicas e muito mais:
- Excelentes escolas, creches e jardins de infância (públicas e privadas);
- Espaços verdes bem cuidados, vários parques infantis e zonas seguras para passeios em família;
- Infraestruturas de lazer e desporto: campos de futebol, ténis, piscina municipal e ginásios;
- Ao lado de um quiosque pizzaria (sim, isso conta muito!);
- Até a vida espiritual tem o seu espaço, com igreja próxima e comunidade ativa.
Este não é apenas um apartamento. É o início de uma nova fase, mais prática, mais tranquila, mais feliz.
Agende já a sua visita e venha sentir-se em casa.